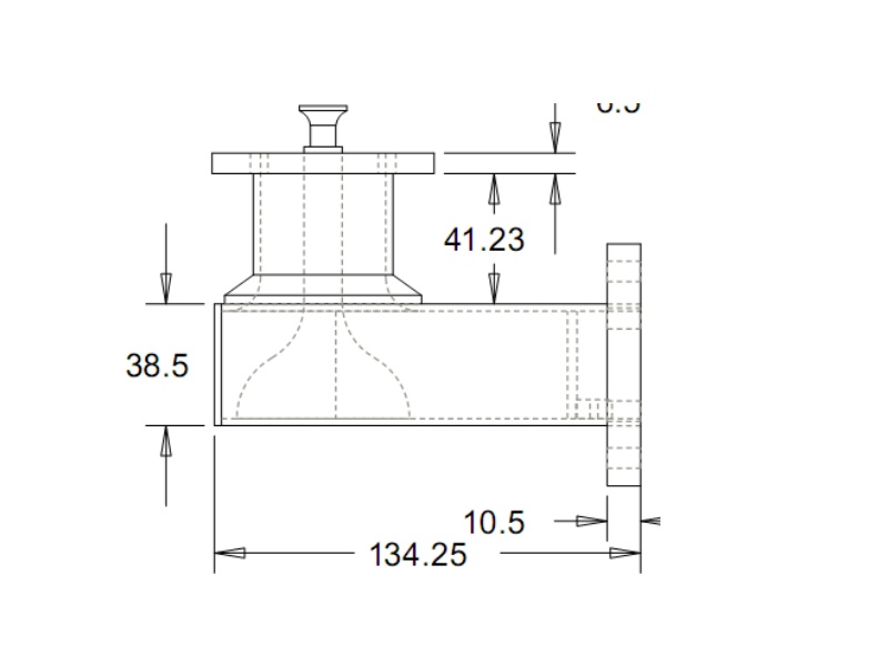
conical feed in a rectangular waveguide
Cone is made up of dielectric.
Thanks

All coaxial-to-waveguide transitions are designed for low loss and sometimes also to transmit a high power.
Any transition between different RF lines should be as smooth as possible while everybody likes to make it compact.
The picture you show indicates either the "doorknob" type transition where the cone is metallic, narrow-band and capable to transmit a high power.
Or, if you say the cone is dielectric, the designer possibly used it to make a low-loss transition over a wider bandwidth.
Similar transitions solved in theory do not offer a simple solution. Therefore manufacturers have found experimental solutions and keep it as a know-how.
You can try your idea for such design; you will see it is not easy.
Thank you for the kind feedback. Transition is done from a stripline via cone to the waveguide. I also think there is a transition of mode from TEM to TE or TM. I have seen the cone structure for feed but never such a transition wherr Cone face is fixed with the waveguide wall
Thanks for the feedback i will try to make it in HFSS see the results.
