pads的操作问题
时间:10-02
整理:3721RD
点击:
本人想把图A作为一个整体翻转180度,
以前我都是C1.C2分别翻转后再连线,以达到翻转的目的.
这里器件较少,操作比较容易.如果我想把 图B 整体翻转 90度, 有简便的操作吗?
谢谢
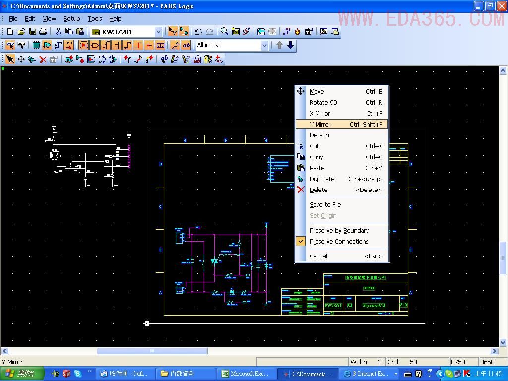
選擇你想要翻轉的器件後再點右鍵,看看你要怎麼轉都行
以前我都是C1.C2分别翻转后再连线,以达到翻转的目的.
这里器件较少,操作比较容易.如果我想把 图B 整体翻转 90度, 有简便的操作吗?
谢谢
图A

图B

ctrl+f ctrl+r
[ 本帖最后由 tianhao 于 2008-4-3 14:51 编辑 ]
小编同志你所讲的是对单个PART的操作方法.
这个我已经试过
对于选中的为非单个PART不好用这个short cut 去操作.
还是谢谢你了
你试过对局部整体进行翻转操作吗?
同意二樓的意見
選擇你想要翻轉的器件後再點右鍵,看看你要怎麼轉都行
樓上的朋友,你用的是哪個版本的?
我用的是PADS2005.SP1,目前無法實現這個操作,但我在PADS,SP2 完全可以用上述方法,請問是版本問題嗎?
哪 用这么麻烦啊,选 你想要翻转的图,右键--SAVE TO FILE,然后在EDIT菜单选 PASTE FROM FILE,选刚才保存你选的图,这样你怎么转都可以啦....
SP1不可以但SP2可以呀
为什么呢
謝謝你的指導
SP2可以直接進行預期的操作
SP1是不可以的
版本问题
