BGA封装问题,请帮忙.
时间:10-02
整理:3721RD
点击:
如果BGA的球是0.35MM的,那做PCB封装时,BGA的焊盘也是做成0.35MM吗?请说一下球与焊盘的关系.
还有一个问题,有一个BGA上面没球了,知道IC焊盘是0.35MM的,如果要植球话,是选用0.35MM的球吗?
球的间距都是0.8mm
球的间距呢?

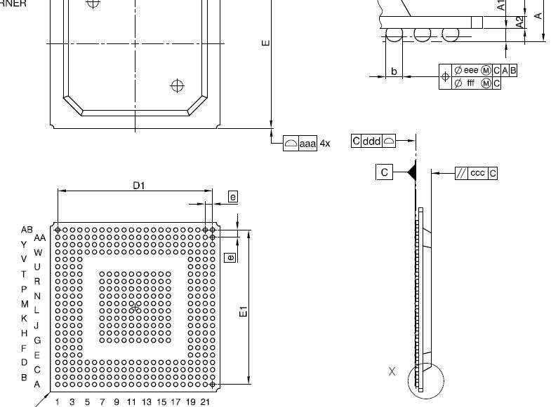
根据这个图里的b以及ddd这两个数值用勾股定理计算
例如焊盘间距1.0mm,直径0.7mm,ddd为0.2mm,那么计算出来的焊盘直径为0.64,那么线宽线距为0.12mm,
如果你直接用0.7mm做为焊盘直径,那线宽线距就只能设计为0.10mm了
有时候就只有那么一点点差别,生产就很困难
补充:
直径0.7mm,半径就是0.35mm(三角形的斜边),0.35-0.2=0.15mm(三角形的一条直角边)
根据勾股定理求得另一条直角边为0.32mm,那么焊盘直径就是0.64mm了
本来就很简单,给你说到非常复杂:
如果e为0.5MM或0.65MM,焊盘就设为0.3MM(不能再小),如果e为0.8MM,焊盘就设为0.35MM或0.4MM.
没有这么复杂,制程上给一个可以保证焊接强度的最小的焊盘就可以了.
