压缩机用直线伺服电机及其驱动控制器设计
时间:08-13
来源:互联网
点击:
直线伺服电机作为斯特林制冷机的关键部件,其控制性能直接影响到整个制冷机系统。目前一般采用永磁无刷直线电机作为伺服电机。本文采用双直线电机驱动压缩机的系统。双直线电动机与压缩机一体化结构设计,有效利用空间,减小了斯特林制冷机的体积。双直线电机驱动压缩机,受力对称,振动小。为进一步减小振动和电磁干扰,电机采用正弦宽调制驱动,温度调节采用数字增量式PID,整个驱动控制器在单片机协调下工作。
1、电机基本结构
电机的基本原理是通入正弦交流电的导电线圈在恒定磁场作用下往复运动,带动活塞,在气缸里压缩压出或拉回抽出一个气缸内的工作气体,产生交变压力波,通过空心导管,传到膨胀机转变成冷量,从而使红外器件敏感观察目标红外信号,通过计算机处理后成像。
为了充分利用空间、减小体积,电机与制冷机的压缩机采用一体化的结构设计方案。压缩机与双直线电机融为一体,压缩机的汽缸和活塞置于电机的内部,汽缸体就是电机的内磁体,活塞又作为电机往复运动的支承件。由于电机行程较短,动子线圈采用软线连接的无刷结构。其中的弹簧即是动子线圈的支承件,又是一个储能元件,在弹簧、电机和压缩机参数匹配条件下,系统谐振驱动,效率最高。
2、驱动控制器的设计
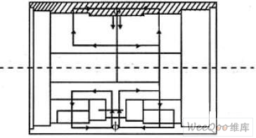
电机驱动控制器主要是调节电机的运动振幅及实现温度控制。其原理框图如图1所示。

图1 驱动控制器原理图
驱动控制器的工作原理是:当控制器接到系统的启动指令后,即以一定频率的正弦波驱动电机做最大振幅的往复运动,同时监测杜瓦瓶内温度的变化,当杜瓦瓶内温度接近要求的温度时,通过调节电机驱动电压的幅值逐渐减小往复运动的幅度,直至达到要求的温度,然后不断调整电机的运动幅度,使杜瓦瓶中的温度保持在要求的温度下。原理框图中各部分的功能如下:
1)接口完成与上位机的通讯。主要功能是接收整机的启、停指令,并将杜瓦瓶中的温度传感器信号经过处理传给整机系统。
2)幅度调制、正弦波发生器在单片机的协调控制下,通过一定的算法产生SPWM波形。
3)温度传感信号处理主要对杜瓦瓶中温度传感二极管的输出信号进行放大。
4)功率驱动器对SPWM波形进行功率放大,驱动电机。
5)单片机驱动控制器的核心,协调处理与整机系统的通信,产生SPWM波形,数字增量式PID调节计算等。
3、电机的电磁设计
电机电磁设计方案主要有两种:一种为动圈式,即线圈运动,优点是动子重量轻,动态性能好,缺点是激磁电流要设法导入动圈;一种是动铁式,即磁钢运动,缺点是动子重量较重,优点是无刷形式,散热条件好,可靠性高。
本电机为提高动态性能和便于压缩机与电机一体化设计,采用动圈式设计方案。动圈式设计方案也有两种选择:一种是动圈在外,磁钢在内的外动子方案,优点是散热性能较好,缺点是动子相对较重;一种是动圈在内,磁钢在外的内动子方案,优点是动子重量轻,缺点是散热性能差一些。
动圈在磁钢外和磁钢内各有优、缺点,这与整个斯特林制冷机系统参数和驱动控制等有关。
本设计方案考虑到动态性能及电磁兼容问题,采用了内动圈的电磁设计方案,磁路如图#。
4、技术难点及其解决途径
4.1 电机部分
1)特殊线圈制作技术

图2 电机磁路简图
为减小体积,提高力能指标和往复运动的力矩平稳,对绕组的整齐性要求高,特别是双活塞对动式直线电动机,两个动圈参数电阻、电感、重量都有对称性要求,排绕要紧密,尺寸控制要好。根据具体线径,经多次绕制,并相应改变动子骨架尺寸,反复摸索,使每层正好绕下要求的导体数,同时要求高精度绕线设备来保证。
2)弹簧绕制技术
由于定位谐振弹簧受到的是反复负荷,在这种负荷条件下,弹簧材料的疲劳特性非常重要,而疲劳特性在很大程度上又取决于表面质量。表面脱碳、裂纹、凹陷或接缝,都可大大降低弹簧材料的耐久性能。采用琴钢丝经过强压和喷丸处理,产生增韧效果,所得到的残余应力加上材料表面的冷作硬化,一般可使耐久性显著增加。
3)弹簧座设计、加工
弹簧与动子通过弹簧座连接。由于受结构尺寸限制,采用的是将弹簧两端密绕几匝作为螺母,弹簧座配车成螺栓连接结构。弹簧绕制、热处理后尺寸要变化,为保证连接安全可靠和连接后形位公差精度,弹簧座螺旋升角、凹漕等尺寸设计要合适。
4.2 驱动控制器部分
1)电磁兼容
电源和电机引出线采用优质屏蔽电缆屏蔽,并采用单点接地方式;对电源进线在驱动器入口
采用四阶LC低通滤波;对输出输入插头选用带双/型低通滤波器的连接器。其在24Mc频率点上的衰减约为45dB。
2)SPWM信号的产生
由单片机产生20kHZ 的SPWM信号,每个周期的正弦波被离散成200段,每隔100微秒单片机的定时器产生一次中断,中断处理时,观察表中的输出相应的脉宽定时,再乘以幅度系数输出。
3)温度控制
由于被控对象是温度,因此采用了传统的增量式PID控制方法。
5、可靠性措施
电机及其控制器的可靠性直接影响到整个制冷系统。电机方面采取的可靠性措施主要有:
a)定子 定子由1J22 的机壳与2:17的稀土磁钢粘接而成,可能引起不可靠的地方为机壳与磁钢的粘接,现采用胶粘,并设计了粘接专用工装夹具;
b)动子 采用有机材料做骨架,经漆包线绕制后进行浸漆绝缘处理而成。其抗振动的机械强度和绝缘性能达到要求;
c)弹簧、弹簧座及连接 将弹簧两端密绕几匝作为螺母,弹簧座配车成螺栓的连接结构。驱动控制器方面采取的可靠性措施主要有:
a) 元器件、零部件的选用及采购的质量保证;
b)降额设计 元器件工作时承受的工作应力(电压、电流、温升、最高运行频率等) 适当低于元器件规定的额定值;
c)简化电路设计 在保证满足性能的情况下,尽可能地减少元器件使用数量,从而提高产品的可靠性;
d) 加强焊接、装配、调试过程中的质量控制。
6、结 语
本文采用直线伺服电机与斯特林制冷机一体化设计的结构方案。双直线电机对动驱动压缩机,使斯特林制冷机具有体积小、振动小、寿命长的优点。驱动控制器以单片机为核心,软件实现正弦脉宽调制(SPWM),用数字PID控制算法实现制冷机的温度控制。驱动控制器参数调整方便,工作效率高。
1、电机基本结构
电机的基本原理是通入正弦交流电的导电线圈在恒定磁场作用下往复运动,带动活塞,在气缸里压缩压出或拉回抽出一个气缸内的工作气体,产生交变压力波,通过空心导管,传到膨胀机转变成冷量,从而使红外器件敏感观察目标红外信号,通过计算机处理后成像。
为了充分利用空间、减小体积,电机与制冷机的压缩机采用一体化的结构设计方案。压缩机与双直线电机融为一体,压缩机的汽缸和活塞置于电机的内部,汽缸体就是电机的内磁体,活塞又作为电机往复运动的支承件。由于电机行程较短,动子线圈采用软线连接的无刷结构。其中的弹簧即是动子线圈的支承件,又是一个储能元件,在弹簧、电机和压缩机参数匹配条件下,系统谐振驱动,效率最高。
2、驱动控制器的设计
电机驱动控制器主要是调节电机的运动振幅及实现温度控制。其原理框图如图1所示。

图1 驱动控制器原理图
驱动控制器的工作原理是:当控制器接到系统的启动指令后,即以一定频率的正弦波驱动电机做最大振幅的往复运动,同时监测杜瓦瓶内温度的变化,当杜瓦瓶内温度接近要求的温度时,通过调节电机驱动电压的幅值逐渐减小往复运动的幅度,直至达到要求的温度,然后不断调整电机的运动幅度,使杜瓦瓶中的温度保持在要求的温度下。原理框图中各部分的功能如下:
1)接口完成与上位机的通讯。主要功能是接收整机的启、停指令,并将杜瓦瓶中的温度传感器信号经过处理传给整机系统。
2)幅度调制、正弦波发生器在单片机的协调控制下,通过一定的算法产生SPWM波形。
3)温度传感信号处理主要对杜瓦瓶中温度传感二极管的输出信号进行放大。
4)功率驱动器对SPWM波形进行功率放大,驱动电机。
5)单片机驱动控制器的核心,协调处理与整机系统的通信,产生SPWM波形,数字增量式PID调节计算等。
3、电机的电磁设计
电机电磁设计方案主要有两种:一种为动圈式,即线圈运动,优点是动子重量轻,动态性能好,缺点是激磁电流要设法导入动圈;一种是动铁式,即磁钢运动,缺点是动子重量较重,优点是无刷形式,散热条件好,可靠性高。
本电机为提高动态性能和便于压缩机与电机一体化设计,采用动圈式设计方案。动圈式设计方案也有两种选择:一种是动圈在外,磁钢在内的外动子方案,优点是散热性能较好,缺点是动子相对较重;一种是动圈在内,磁钢在外的内动子方案,优点是动子重量轻,缺点是散热性能差一些。
动圈在磁钢外和磁钢内各有优、缺点,这与整个斯特林制冷机系统参数和驱动控制等有关。
本设计方案考虑到动态性能及电磁兼容问题,采用了内动圈的电磁设计方案,磁路如图#。
4、技术难点及其解决途径
4.1 电机部分
1)特殊线圈制作技术

图2 电机磁路简图
为减小体积,提高力能指标和往复运动的力矩平稳,对绕组的整齐性要求高,特别是双活塞对动式直线电动机,两个动圈参数电阻、电感、重量都有对称性要求,排绕要紧密,尺寸控制要好。根据具体线径,经多次绕制,并相应改变动子骨架尺寸,反复摸索,使每层正好绕下要求的导体数,同时要求高精度绕线设备来保证。
2)弹簧绕制技术
由于定位谐振弹簧受到的是反复负荷,在这种负荷条件下,弹簧材料的疲劳特性非常重要,而疲劳特性在很大程度上又取决于表面质量。表面脱碳、裂纹、凹陷或接缝,都可大大降低弹簧材料的耐久性能。采用琴钢丝经过强压和喷丸处理,产生增韧效果,所得到的残余应力加上材料表面的冷作硬化,一般可使耐久性显著增加。
3)弹簧座设计、加工
弹簧与动子通过弹簧座连接。由于受结构尺寸限制,采用的是将弹簧两端密绕几匝作为螺母,弹簧座配车成螺栓连接结构。弹簧绕制、热处理后尺寸要变化,为保证连接安全可靠和连接后形位公差精度,弹簧座螺旋升角、凹漕等尺寸设计要合适。
4.2 驱动控制器部分
1)电磁兼容
电源和电机引出线采用优质屏蔽电缆屏蔽,并采用单点接地方式;对电源进线在驱动器入口
采用四阶LC低通滤波;对输出输入插头选用带双/型低通滤波器的连接器。其在24Mc频率点上的衰减约为45dB。
2)SPWM信号的产生
由单片机产生20kHZ 的SPWM信号,每个周期的正弦波被离散成200段,每隔100微秒单片机的定时器产生一次中断,中断处理时,观察表中的输出相应的脉宽定时,再乘以幅度系数输出。
3)温度控制
由于被控对象是温度,因此采用了传统的增量式PID控制方法。
5、可靠性措施
电机及其控制器的可靠性直接影响到整个制冷系统。电机方面采取的可靠性措施主要有:
a)定子 定子由1J22 的机壳与2:17的稀土磁钢粘接而成,可能引起不可靠的地方为机壳与磁钢的粘接,现采用胶粘,并设计了粘接专用工装夹具;
b)动子 采用有机材料做骨架,经漆包线绕制后进行浸漆绝缘处理而成。其抗振动的机械强度和绝缘性能达到要求;
c)弹簧、弹簧座及连接 将弹簧两端密绕几匝作为螺母,弹簧座配车成螺栓的连接结构。驱动控制器方面采取的可靠性措施主要有:
a) 元器件、零部件的选用及采购的质量保证;
b)降额设计 元器件工作时承受的工作应力(电压、电流、温升、最高运行频率等) 适当低于元器件规定的额定值;
c)简化电路设计 在保证满足性能的情况下,尽可能地减少元器件使用数量,从而提高产品的可靠性;
d) 加强焊接、装配、调试过程中的质量控制。
6、结 语
本文采用直线伺服电机与斯特林制冷机一体化设计的结构方案。双直线电机对动驱动压缩机,使斯特林制冷机具有体积小、振动小、寿命长的优点。驱动控制器以单片机为核心,软件实现正弦脉宽调制(SPWM),用数字PID控制算法实现制冷机的温度控制。驱动控制器参数调整方便,工作效率高。
电动机 单片机 红外 电压 传感器 PWM 二极管 电流 电阻 电感 滤波器 连接器 电路 相关文章:
- 基于DSP高精度伺服位置环设计(06-21)
- 基于DSP的工业缝纫机控制系统设计(09-23)
- 无传感器交流电动机控制技术提高了运行效率(10-15)
- 一种变频调速系统的SVPWM控制设计(02-03)
- FPGA在步进电机控制中的应用(03-07)
- 用C8051F构成的采集与控制系统(03-09)
