基于LabVlEW太阳能路灯充放电监测系统
时间:12-03
来源:互联网
点击:
1引言
太阳能路灯主要由太阳能光电池组件、蓄电池、充放电控制器、照明灯具四大部分组成。太阳能路灯普及推广的瓶颈已不是技术问题,而是成本问题。要在降低成本的基础上,提高系统的稳定性及发挥最大的效能,就要合理搭配太阳能光电池的输出功率和蓄电池容量及负载功率。为此,仅从理论计算是不够的。因为太阳光光强瞬息万变,充电电流和放电电流都在不断变化,理论计算会带来较大误差。只有采取自动跟踪监测充放电流才能准确确定光电池在不同季节和不同方位的最大功率输出。以此确定蓄电池和负载才是可靠的。
在LabVIEW软件平台上,结合数据采集卡,利用虚拟仪器技术可实现自动监测及数据分析任务。本文对自行研制开发的监测系统作一阐述。
2设计原理
利用调理电路对光电池的输出电流和蓄电池的放电电流及蓄电池的充放电工作电压进行一定频率的数据采样,由USB数据采集模块将采集数据送入计算机。在LabVIEW软件平台上进行适时显示和统计分析。原理框图见图1.

图1系统原理框图
3数据采集硬件配置
3.1调理电路
蓄电池输出信号是一种浮动信号。采用差分测量方式会最大限度地减小对被测电路的影响,同时也会减小测量误差。在本调理电路中,采用高精度低漂移的集成运算放大器ICL7650制作的差动放大器将串入充放电线路的精密小电阻之上的差动信号作为电流检测信号。将并入蓄电池的大电阻分压器获得的小信号作为电压信号。为消除干扰,用两个等值电阻分别接于差动放大器的两输入端与信号地之间。将两个差动放大器的输出信号送人USB采集模块的两个输入通道以完成信号调理及采集。调理电路见图2、图3.

图2电流信号调理

图3电压信号调理
3.2数据采集模块
本系统采用加拿大HYTEK公司生产的USB接1:3数据采集模块,型号为iUSBDAQ-U120816.它虽不是高端采集卡,但对于采集直流信号,特别是采样频率不是很高时,已足够达到集结束后,选择"退出并回放"按钮,在回放波形窗将显示采集要求。USB接口可方便地用于热插拔及即插即用。连接笔记电脑可实现现场数据监测。
3.3模块配置及驱动
在所用计算机上执行HYTEK公司提供的设备驱动程序iUSBDAQ-Driver.exe,即可激活采集模块。再将该公司提供的iUSBDAQ_ALL_Vis.LLb专用VI函数库拷贝到安装LabVlEW7.1目录的vl子目录下的User子目录,即可在BlockDiagramt和Front Panel编辑环境中调用User Functions和User Controls.
4软件开发
LabVIEW是美国国家仪器(NI烩司开发的广泛应用于仪器控制、自动化测试、数据分析处理等领域图形化编程语言,是优秀的开发虚拟仪器软件。在自动化测控领域得到越来越广泛的应用。开发本系统采用的是LabVIEW7.1版本。
4.1程序流程图(见图4)

图4程序流程图
4.2面板设计
在图5所示的面板图中,设置两个开关以选择是监测电流、电压还是同时监测。分别显示电流实时采集曲线和电压实时采集曲线,并配以数字显示。在采集周期设置窗口,以秒为单位设置采样周期。"开始采集"按钮同时具有暂停功能。全部采集结束后,选择"退出并回放"按钮,在回放波形窗将显示采集电流波形,并计算其曲线下面积值作为电流充放电的安时数(能量值)。在面板的右下方同时显示带有日期、时间信息的全部数据列表,并显示电流、电压最大最小值。

图5虚拟仪器面板图
4.3程序结构描述
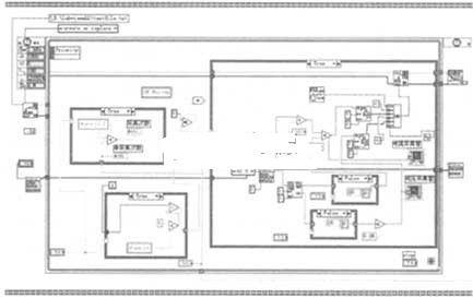
总体采用两帧组成的平铺顺序结构(Flat Sequence),第一帧完成的是数据采集及显示、存储;第二帧完成数据计算、回收及显示运算结果。图6给出的是第一帧图形化程序。

图6第一帧图形化程序框图
该帧采用定时循环结构(Timed Loop),在进入循环结构之前,利用OpetdCreate/Replace File VI建立要存储的数据文件(。txt)的路径及文件名,并调用iUSBDAQ_0penDevice函数打开采集设备。当选择开始采集分支结构时,将打开采集设备的两个输入通道轮流采集数据,得到二维数组。通过Delete From Array函数分离该数组,并分别通过两个分支结构做为电流、电压选择开关,经数值标度变换送至波形?Chart.将Format Date/TimeString的日期时间信息输出和两数组通过Number To FractionalString转化成的字符串输出,由Concatenate Dtrings合并,经Write File VI送入指定的磁盘数据文件中,以备分析、调用。
当选择"暂停采集"或"退出采集"按钮时,无论采集周期设置的是多少,都应迅速退出循环。为此,采用判断循环次数和采集次数的算法。
采集次数=循环次数/采集周期。
以整除的结果为采集次数,并以余数为零做为一次采集结束的判断条件。利用两个分支结构可累计多次间断的采集次数,直到选择退出定时循环。由于设定的定时循环周期为1秒,无论是否在采集状态,循环始终以1秒的周期运行。当按下"退出采集"按钮时,最多等待时间为1秒即退出,而不是等待用户设定的一个采样周期。
采集数据结束,退出第一帧结构之前,通过Close File VI关闭文件,并通过iUSBDAQ-Release Defice关闭设备。图7给出的是第二帧图形化程序。

图7第二帧图形化程序框图
该帧首先由Read Characters From File VI函数读出磁盘数据文件中的数据。由于读出的是字符串,要经Spreadsheet StringTo Arrary函数将其转为三维数组,再经两个Delete From Array将三维分离为三个一维数组。将电流信息数据送人BuildWaveform生成波形,由Chart显示。同时将该组数据经NumericIntegration.vi求积分,得曲线下面积值,在输出能量窗显示充放电的安时数。
在回放电流曲线的同时,在屏幕的String窗列表显示每一次的采样数据。电流和电压信息数组再经Reshape Array和Array max
5结束语
利用LabVlEW软件和USB采集模块结合所开发的虚拟仪器,较好地完成了对太阳能路灯的蓄电池充放电的全程监测。
操作简单、界面友好、测量数据精度高。得到了电流表和电压表单次测量而很难得到的数据。提高了测量效率、节约了仪器开支。依此测得的数据可合理匹配太阳能电池的输出功率与蓄电池容量和负载的大小,发挥最大效益。同时,对延长蓄电池的使用寿命、提高路灯的亮度和预算连续阴雨天的储备能量都有实际意义。
该系统对其它电充蓄电池同样有应用价值。在此基础上可进一步开发控制单元,利用LabVlEW的PID工具包可对蓄电池的过充、过放、短路、反充及定时开关等均可实现自动化控制。
太阳能路灯主要由太阳能光电池组件、蓄电池、充放电控制器、照明灯具四大部分组成。太阳能路灯普及推广的瓶颈已不是技术问题,而是成本问题。要在降低成本的基础上,提高系统的稳定性及发挥最大的效能,就要合理搭配太阳能光电池的输出功率和蓄电池容量及负载功率。为此,仅从理论计算是不够的。因为太阳光光强瞬息万变,充电电流和放电电流都在不断变化,理论计算会带来较大误差。只有采取自动跟踪监测充放电流才能准确确定光电池在不同季节和不同方位的最大功率输出。以此确定蓄电池和负载才是可靠的。
在LabVIEW软件平台上,结合数据采集卡,利用虚拟仪器技术可实现自动监测及数据分析任务。本文对自行研制开发的监测系统作一阐述。
2设计原理
利用调理电路对光电池的输出电流和蓄电池的放电电流及蓄电池的充放电工作电压进行一定频率的数据采样,由USB数据采集模块将采集数据送入计算机。在LabVIEW软件平台上进行适时显示和统计分析。原理框图见图1.

图1系统原理框图
3数据采集硬件配置
3.1调理电路
蓄电池输出信号是一种浮动信号。采用差分测量方式会最大限度地减小对被测电路的影响,同时也会减小测量误差。在本调理电路中,采用高精度低漂移的集成运算放大器ICL7650制作的差动放大器将串入充放电线路的精密小电阻之上的差动信号作为电流检测信号。将并入蓄电池的大电阻分压器获得的小信号作为电压信号。为消除干扰,用两个等值电阻分别接于差动放大器的两输入端与信号地之间。将两个差动放大器的输出信号送人USB采集模块的两个输入通道以完成信号调理及采集。调理电路见图2、图3.

图2电流信号调理

图3电压信号调理
3.2数据采集模块
本系统采用加拿大HYTEK公司生产的USB接1:3数据采集模块,型号为iUSBDAQ-U120816.它虽不是高端采集卡,但对于采集直流信号,特别是采样频率不是很高时,已足够达到集结束后,选择"退出并回放"按钮,在回放波形窗将显示采集要求。USB接口可方便地用于热插拔及即插即用。连接笔记电脑可实现现场数据监测。
3.3模块配置及驱动
在所用计算机上执行HYTEK公司提供的设备驱动程序iUSBDAQ-Driver.exe,即可激活采集模块。再将该公司提供的iUSBDAQ_ALL_Vis.LLb专用VI函数库拷贝到安装LabVlEW7.1目录的vl子目录下的User子目录,即可在BlockDiagramt和Front Panel编辑环境中调用User Functions和User Controls.
4软件开发
LabVIEW是美国国家仪器(NI烩司开发的广泛应用于仪器控制、自动化测试、数据分析处理等领域图形化编程语言,是优秀的开发虚拟仪器软件。在自动化测控领域得到越来越广泛的应用。开发本系统采用的是LabVIEW7.1版本。
4.1程序流程图(见图4)

图4程序流程图
4.2面板设计
在图5所示的面板图中,设置两个开关以选择是监测电流、电压还是同时监测。分别显示电流实时采集曲线和电压实时采集曲线,并配以数字显示。在采集周期设置窗口,以秒为单位设置采样周期。"开始采集"按钮同时具有暂停功能。全部采集结束后,选择"退出并回放"按钮,在回放波形窗将显示采集电流波形,并计算其曲线下面积值作为电流充放电的安时数(能量值)。在面板的右下方同时显示带有日期、时间信息的全部数据列表,并显示电流、电压最大最小值。

图5虚拟仪器面板图
4.3程序结构描述
总体采用两帧组成的平铺顺序结构(Flat Sequence),第一帧完成的是数据采集及显示、存储;第二帧完成数据计算、回收及显示运算结果。图6给出的是第一帧图形化程序。

图6第一帧图形化程序框图
该帧采用定时循环结构(Timed Loop),在进入循环结构之前,利用OpetdCreate/Replace File VI建立要存储的数据文件(。txt)的路径及文件名,并调用iUSBDAQ_0penDevice函数打开采集设备。当选择开始采集分支结构时,将打开采集设备的两个输入通道轮流采集数据,得到二维数组。通过Delete From Array函数分离该数组,并分别通过两个分支结构做为电流、电压选择开关,经数值标度变换送至波形?Chart.将Format Date/TimeString的日期时间信息输出和两数组通过Number To FractionalString转化成的字符串输出,由Concatenate Dtrings合并,经Write File VI送入指定的磁盘数据文件中,以备分析、调用。
当选择"暂停采集"或"退出采集"按钮时,无论采集周期设置的是多少,都应迅速退出循环。为此,采用判断循环次数和采集次数的算法。
采集次数=循环次数/采集周期。
以整除的结果为采集次数,并以余数为零做为一次采集结束的判断条件。利用两个分支结构可累计多次间断的采集次数,直到选择退出定时循环。由于设定的定时循环周期为1秒,无论是否在采集状态,循环始终以1秒的周期运行。当按下"退出采集"按钮时,最多等待时间为1秒即退出,而不是等待用户设定的一个采样周期。
采集数据结束,退出第一帧结构之前,通过Close File VI关闭文件,并通过iUSBDAQ-Release Defice关闭设备。图7给出的是第二帧图形化程序。

图7第二帧图形化程序框图
该帧首先由Read Characters From File VI函数读出磁盘数据文件中的数据。由于读出的是字符串,要经Spreadsheet StringTo Arrary函数将其转为三维数组,再经两个Delete From Array将三维分离为三个一维数组。将电流信息数据送人BuildWaveform生成波形,由Chart显示。同时将该组数据经NumericIntegration.vi求积分,得曲线下面积值,在输出能量窗显示充放电的安时数。
在回放电流曲线的同时,在屏幕的String窗列表显示每一次的采样数据。电流和电压信息数组再经Reshape Array和Array max
5结束语
利用LabVlEW软件和USB采集模块结合所开发的虚拟仪器,较好地完成了对太阳能路灯的蓄电池充放电的全程监测。
操作简单、界面友好、测量数据精度高。得到了电流表和电压表单次测量而很难得到的数据。提高了测量效率、节约了仪器开支。依此测得的数据可合理匹配太阳能电池的输出功率与蓄电池容量和负载的大小,发挥最大效益。同时,对延长蓄电池的使用寿命、提高路灯的亮度和预算连续阴雨天的储备能量都有实际意义。
该系统对其它电充蓄电池同样有应用价值。在此基础上可进一步开发控制单元,利用LabVlEW的PID工具包可对蓄电池的过充、过放、短路、反充及定时开关等均可实现自动化控制。
电流 LabVIEW 虚拟仪器 电路 电压 USB 放大器 电阻 自动化 相关文章:
- 高可靠性系统中电流检测的实际考虑(03-12)
- 挑战毫微安电流测量技术(上)(08-02)
- 二极管泄漏电流以及MOSFET的亚阈区电流的测量(09-22)
- 瞬间变化电流检测仪的设计和应用(10-26)
- 雪崩光电二极管反向电流的测量(01-11)
- BJT参数测试仪中数控微电流源研究与实现(07-11)
